Description:Os presentamos está promoción de obra nueva en una de las mejores zonas de Montcada i Reixac, Masrampinyo. Compuesta por 2 edificios independientes, con fachada a las calles Alt de Sant Pere y calle Aragó que cuenta con un total de 10 viviendas de 1 a 3 dormitorios, con terrazas, amplios espacios interiores además de espacios comunes y una planta dedicada a aparcamiento a pie de calle con capacidad para 10 plazas con preinstalación para vehículos eléctricos.
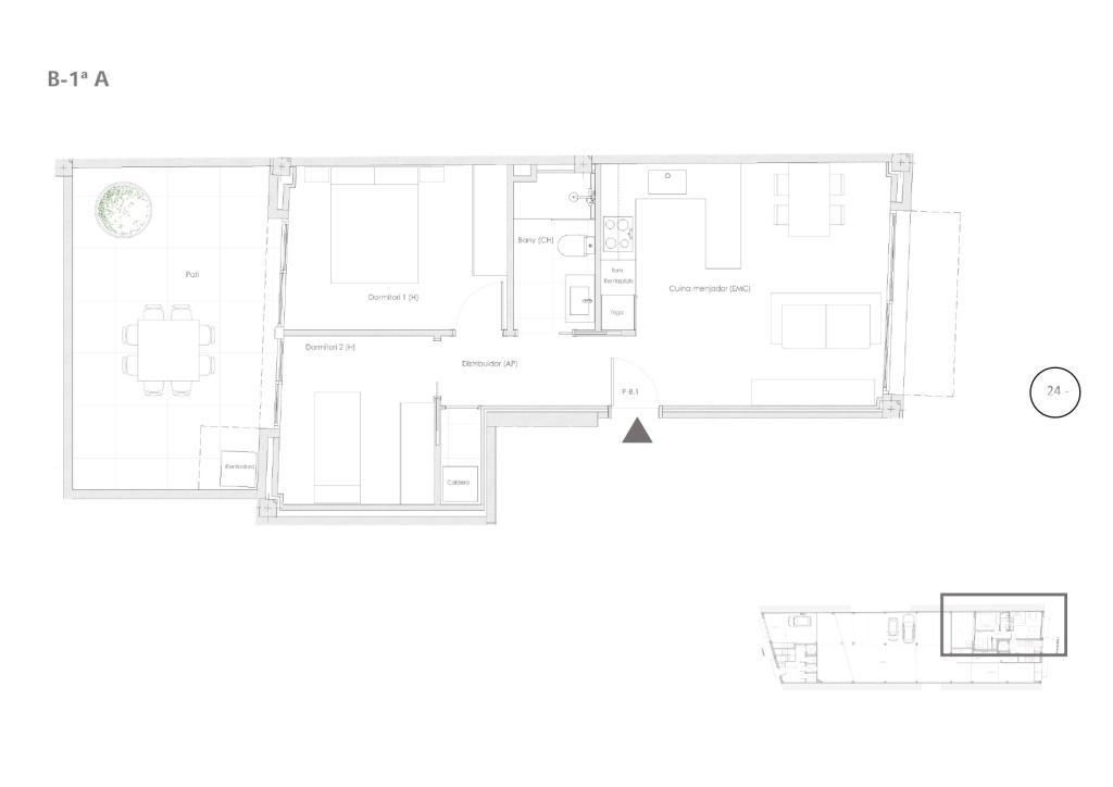
Este inmueble situado en planta baja se distribuye en:
- 2 Habitaciones
-1 Baño (Baldosas y suelos porcelánicos, grifería y sanitarios marca ROCA)
- Cocina ( Totalmente equipada, amueblada en acabados blanco mate con iluminación LED integrada, encimera de Silestone y electrodomésticos de primeras marcas)
- Patio privado de 17mt
- Plaza de parking OPCIONAL en la misma finca.
Cuenta con las mejores calidades del mercado y últimas tecnologías aplicables en la construcción, donde la calidad de vida y la sostenibilidad energética priman por encima de todos los aspectos. Finca equipada con ascensor.
Sistema de calefacción y climatización por Aero termia. Iluminación empotrada Donwlight de LED. Instalación de telecomunicaciones y fibra óptica en todas las estancias de la vivienda. Puertas de acceso blindadas, interiores monobloc lacadas en blanco. Carpintería exterior de aluminio Climalit con rotura de puente térmico y persianas motorizadas. Pavimento de parquet flotante AC4.
La promoción se sitúa dentro del área metropolitana en una zona inmejorable de la ciudad de Montcada i Reixac, justo delante de una gran zona verde, cines, restaurantes, hoteles y centros comerciales, estación de Renfe, autobuses y muy buenas conexiones con C-17, C-58, AP-7.
LAS OBRAS COMIENZAN EN ABRIL DEL 2025 Y TIENE UNA DURADA DE 18 MESES
¡¡Llámanos para más información, NO LO DEJES ESCAPAR!!